Full Details
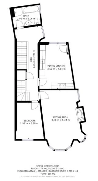
Early viewing is essential to appreciate this stunning three bedroom double upper which forms part of a traditional granite building within in a prime West End location. The property boats many period features including high ceilings, a bay window and traditional fireplace in the lounge, intricate ceiling work, pitch pine doors and a unique turret in the master bedroom. Prospective purchasers will no doubt be impressed by the level of generously proportioned accommodation on offer which comprises of: Welcoming hallway with staircase leading to the upper floors; elegant lounge; dining kitchen with integrated appliances; double bedroom; four-piece family bathroom. Upper Floor: Master bedroom with walk-in wardrobes and an ensuite shower room; further bedroom. Outside there is a single garage accessed from Harcourt Road. Heating is provided by a gas central heating system and all windows (apart from the curved window in the lounge) are double glazed. The fitted flooring, white goods, light fittings, blinds and curtains will be included in the sale.
Location: Mid Stocket Road is situated in the city's prestigious West End, within easy reach of the City Centre, as well as various business locations across the city and suburbs. The property is located within the catchment area for Mile End Primary School and Aberdeen Grammar School and local cafes and specialist shops can be found on nearby Rosemount. Foresterhill Hospital and ONE BioHub Life Sciences at Foresterhill Campus are also within easy walking distance. In addition, there is a choice of bus routes which link the City Centre and all areas beyond.
TRAVEL INFO
From the West End of Union Street, continue onto Alford Place, Albyn Place and then onto Queens Road. At the Queens Cross roundabout take the third exit, turning right onto Fountainhall Road then at the T-junction, turn left onto Kings Gate. Take the following road on the right onto Gordondale Road then left onto Mid Stocket Road. Number 206 is situated a short distance along on the right as indicated by our 'For Sale' sign.
VIEWING
Peterkins to arrange on 01224 428100.
Location
Key Features
- Double Upper Flat
- Boasts Many Period Features
- Lounge with Bay Window
- Dining Kitchen with Appliances
- Master Bedroom with En-Suite
- Two Further Bedrooms
- Bathroom Bathroom
- Gas Central Heating













































