Full Details
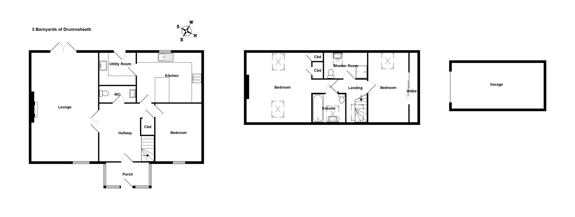
We are pleased to offer for sale this 3 bedroomed terraced steading located in small development on the outskirts of Kintore. With open views and spacious living and bedroom accommodation throughout, the ground floor comprises of an Entrance vestibule and welcoming hallway, Lounge/Diner with a wood burning stove, W.C, Kitchen, Utility room and a Double bedroom. The upper floor consists of a Bedroom, Shower room and a Master bedroom with an Ensuite Bathroom. Benefitting from Oil central heating, full double glazing and a great amount of built in storage space throughout. Outside, the rear garden is well maintained and fully enclosed making it ideal for a family with children and/or pets. There is a communal courtyard to the front of the property with ample parking at both the front and to the rear alongside the Single garage. Early viewing is highly recommended to fully appreciate the location and accommodation on offer.
TRAVEL INFO
From Kintore, take the B977 towards Dunnechect. Coming through Leylodge, take the right-hand turn signposted 'Lauchentilly'. Follow the road for approx. 1.4 miles. The access track for the property is on the left indicated by the aqua blue sign, posted 'Drumnaheath.' Follow the track over the cattle grid and take the track to the right-hand side of the steading. Follow round to the rear where parking is provided and access through the courtyard to the front door. Access to the back door from the garage area and through the back garden.
Location
Key Features
- 3 bedroomed terraced converted steading
- Development in a quiet rural location
- Open countryside views
- Spacious living and bedroom accommodation throughout
- Well presented
- Full double glazing
- Oil central heating and a wood burning stove in the Lounge
- Single garage and ample parking









































