Full Details
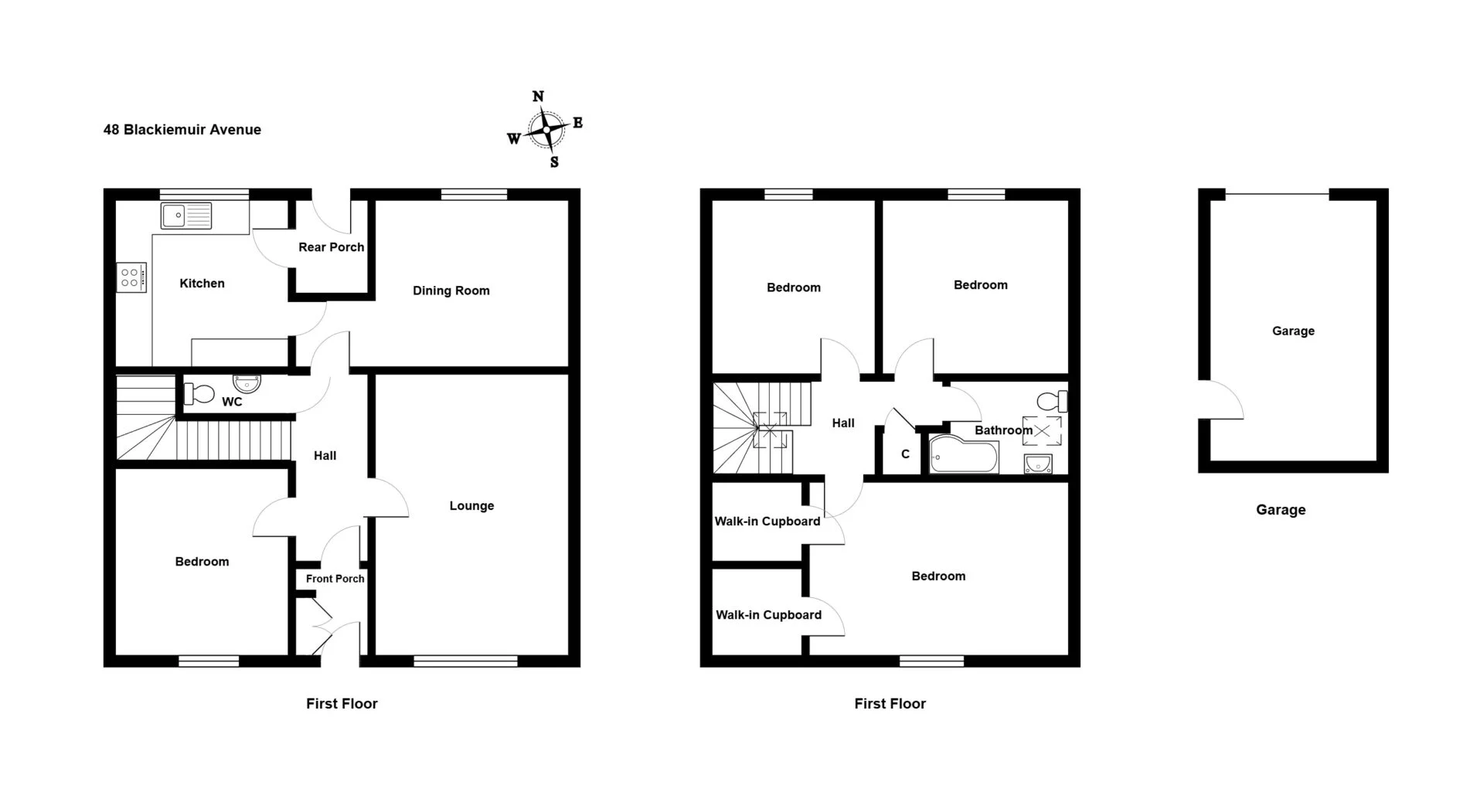
We are delighted to offer for sale this delightful four-bedroom detached dwellinghouse which enjoys a quiet location within the popular village of Laurencekirk. The property is presented in an immaculate condition with fresh décor and neutral coloured flooring throughout. The accommodation spans over two floors and comprises of: Entrance vestibule; welcoming hallway with a carpeted staircase leading to the upper floor; cloakroom; generously proportioned living room with a feature fireplace; dining room; well-equipped kitchen; rear porch; fourth bedroom. Upper Floor: Master bedroom with two walk-in cupboards; two further double bedrooms; family bathroom with an over bath shower. Outside there are well-kept gardens and a long driveway to the side of the house which leads up to a single garage. Heating is provided by a gas central heating system and all windows are double glazed. The fitted flooring, light fittings, certain white goods, free standing oak wardrobe and curtains will be included in the sale. Please note: The net curtains in all rooms will be removed.
* Detached Four Bedroom Dwellinghouse
* Set in a Quiet Location
* Living Room with Feature Fireplace
* Dining Room
* Well-Equipped Kitchen
* Rear Porch
* Cloakroom
* Four Double Bedrooms
* Family Bathroom with an Over Bath Shower
* Gas Central Heating
* Double Glazing
* Well-Kept Gardens
* Long Driveway & Single Garage
Location: Laurencekirk is a long-established thriving village which lies within some 30 miles driving distance via dual carriageway of Aberdeen, surrounded by beautiful countryside. The town is well served by a range of excellent amenities, these include primary and secondary schools, a range of shops serving everyday needs and leisure facilities. Excellent road and rail links ensure ease of access to Aberdeen and Dyce to the North and Dundee to the south, making this an ideal commuter base. Laurencekirk is also within easy commuting distance to Montrose and Brechin.
TRAVEL INFO
Travelling south from Aberdeen on the A90 dual carriageway take the first entrance to Laurencekirk and proceed into the town centre. Continue along for a short distance then turn right onto Blackiemuir Avenue, number 48 is situated on the right-hand side of the road as indicated by our 'For Sale' sign.
VIEWING
Contact Peterkins tel. (01224) 428100
Location
Key Features
- Detached Dwellinghouse Set in a Quiet Location
- Living Room & Dining Room
- Kitchen & Rear Porch
- Cloakroom
- Four Double Bedrooms
- Bathroom with an Over Bath Shower
- Gas Central Heating
- Double Glazing















































